Casa Resid.

Imóvel à venda

Descrição

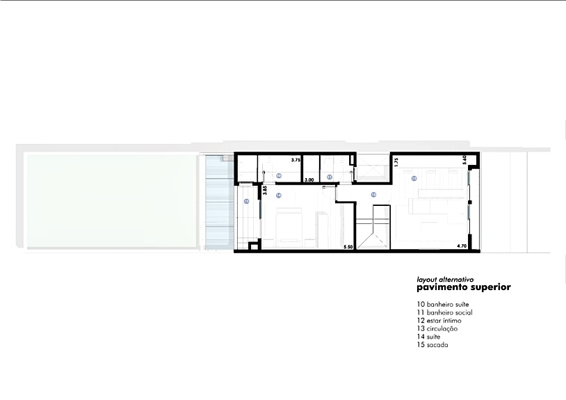
Sobrado no bairro Três Vendas próxima praça Modelo. Frente LESTE-SUDESTE e fundos OESTE-NOROESTE. Os ambientes se distribuem em dois pavimentos: * TÉRREO: garagem, depósito, hall, lavabo, área técnica, jantar, estar, cozinha, lavanderia e varanda; * SUPERIOR: circulação, banheiro social, três dormitórios, sendo um suíte Área total construída = 176,26 m² Características: Lareira, churrasqueira, esquadrias em PVC, persianas automatizadas, esperas para ar condicionado, placas fotovoltaicas e aquecimento solar, fechadura eletrônica. R$ 1.180.000,00

Área

176m²

Dormitórios

3

R$

1.180.000,00

Cód.

12257

TRES VENDAS, PELOTAS.

Ocupação

Residencial

Se interessou? Nós ligamos para você
Solicite contato de um de nossos corretores.

Voltar

Comprar

Alugar

Buscar por Código